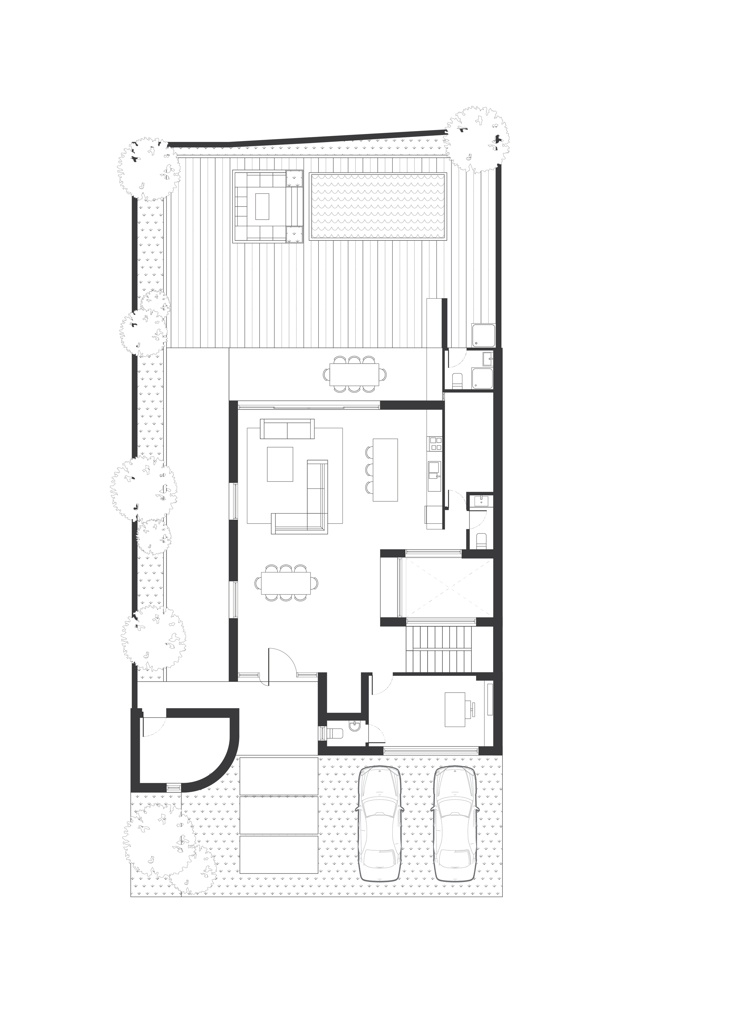
Okeanou Residence
Location - Kalamata, Greece
Architects - Forma Architecture
Civil Engineers - LG Construction
Area - 435 m2
Project Type - Single Family Villa
Project Year - 2025
Status - Under Construction
A Dialogue of Form and Light
This residence is a bold statement of contemporary design, conceived as a dynamic interplay of geometric volumes and a masterful study in light and shadow. The design is anchored by a powerful, cantilevered upper volume that appears to float effortlessly above the ground floor, creating a sheltered, welcoming entryway and carport.
The purity of the rectilinear forms is softened by a gracefully curved wall, which introduces a sense of fluidity and guides the eye towards the entrance. This juxtaposition of straight lines and gentle curves forms the core of the home's sculptural identity. The material palette is intentionally restrained to emphasize the architectural form; a monolithic, light-toned render unifies the main structure, while a screen of dark, vertical timber cladding provides a warm, textural contrast that elegantly conceals the garage.

